GRAN, nowoczesny i ekologiczny dom modułowy – gotowy projekt

Inspiracje

O partnerze

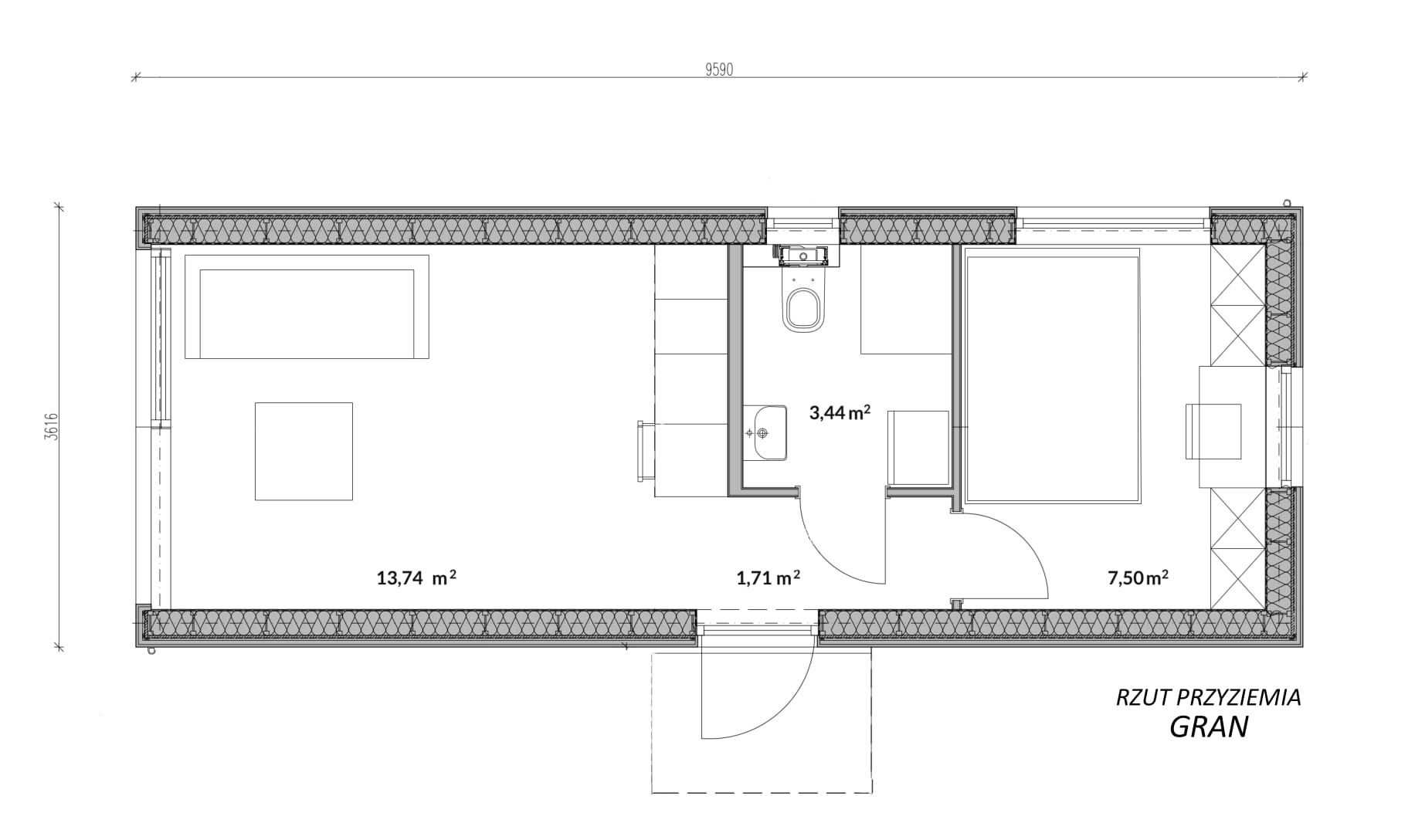
Projekt GRAN to nowoczesny i ekologiczny dom modułowy o zwartej bryle, z dachem dwuspadowym. Duże przeszklenie w fasadzie szczytowej wprowadza przestrzeń i światło do wnętrza. W budynku wydzielono pokój dzienny z aneksem kuchennym, łazienkę i niezależną sypialnię na parterze. Dodatkowo na antresoli znajduje się miejsce do spania. Dom modułowy, całoroczny, ocieplony m.in. ekologiczną wełną drzewną, materiałem otwartym dyfuzyjnie o wspaniałych właściwościach izolacyjnych. Oddawany w stanie deweloperskim.

Firma WESTA TRE z siedzibą w Zielonej Górze oferuje budowę domów modułowych na terenie całego kraju. W swojej ofercie posiada nowoczesne projekty budynków całorocznych do 35 i 70m2 powierzchni zabudowy oraz większych, które dowozi na działkę Klienta w postaci gotowych elementów.

Domy WESTA TRE są świetnym wyborem dla osób, które marzą o wyjątkowym miejscu na letnie wyjazdy lub weekendowy relaks, młodych osób chcących rozpocząć samodzielne życie we własnym mieszkaniu przy niewielkim nakładzie finansowym, inwestorów i osób, dla których czas i wygoda mają znaczenie.

Szczegóły oferty

Cena zakupu: 169 500 zł netto

DANE POWIERZCHNIOWE:

  • Powierzchnia zabudowy 34,68m2
  • Szerokość zabudowy 3,62m
  • Długość zabudowy 9,59m
  • Wysokość budynku 5,4m
  • Kondygnacje nadziemne 1
  • Kąt nachylenia dachów 45o
  • Rodzaj fundamentu: stopy fundamentowe (wykonanie w zakresie Zamawiającego)
  • Ocieplenie: włókno drzewne wdmuchiwane (20cm ściany, 25cm dach) i wełna mineralna (20cm podłoga)
  • Okna: PCV trzyszybowe, energooszczędne, antracyt wewnątrz i na zewnątrz
  • Miejsca noclegowe dla 6 osób.

SPECYFIKACJA MATERIAŁOWA (PAKIET STANDARD):

  • Ściany zewnętrzne: ściany nośne w konstrukcji drewnianej szkieletowej z belek dwuteowych. Wykończenie wewnętrzne ścian z płyty g-k. Konstrukcja wypełniona wełna drzewną lub mineralną grubości 20cm.
  • Ścianki działowe: konstrukcja z profili ocynkowanych grubości 75mm, wypełnienie wełną mineralną, płyta g-k po obu stronach.
  • Dach: dwuspadowy, o kącie nachylenia 45°, o konstrukcji drewnianej, w technologii szkieletowej, z belek dwuteowych. Wykończenie wewnętrzne z płyty g-k. Konstrukcja wypełniona wełną drzewną lub mineralną o łącznej grubości 25 cm. Pokryty blachą na rąbek stojący.
  • Fundamenty: punktowe, betonowe, zbrojone. Głębokość posadowienia fundamentów poniżej poziomu przemarzania gruntu. Fundamenty do wykonania przez Zamawiającego
  • Podłoga nad gruntem: w konstrukcji drewnianej szkieletowej z belek dwuteowych z poszyciem z płyty OSB . Izolacja podłogi z mineralnej o grubości 20cm.
  • Elewacje: wykończone świerkowymi deskami elewacyjnymi w układzie pionowym, zabezpieczone bejcą.
  • Okna i drzwi: zewnętrzna stolarka okienna – PCV rozwierno-uchylne z pakietem trzyszybowym, drzwi wejściowe stalowe.
  • Instalacje: elektryczna, bez osprzętu. Instalacja wodno-kanalizacyjna, zakończona korkami na podejściach do urządzeń sanitarnych, bez osprzętu. Wentylacja grawitacyjna oraz mechaniczna w łazience.

Skontaktuj się

    Dane kontaktowe

    Lokalizacja działki

    Napisz wiadomość

    Skontaktuj się

      Dane kontaktowe

      Lokalizacja działki

      Napisz wiadomość

      Inspiracje