Projekt HANA 3 – gotowy projekt

Inspiracje

O partnerze

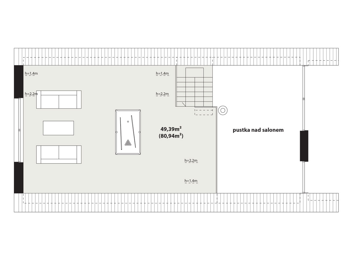
Prezentujemy Państwu nowoczesną STODOŁĘ o imieniu HANA 3. Jest ona bardzo efektowna jak na tak optymalnie skrojoną kubaturę. Przebojem tego wygodnego domu jest przestrzeń antresoli, która daje możliwość stworzenia drugiego salonu, pracowni, pokoju do pielęgnowania swojego hobby, a nawet do wygospodarowania dodatkowych miejsc do spania dla gości.

Goście z pewnością zachwycą się przestronnym wnętrzem salonu otwartego, aż do samego dachu. Z kolei ogrzewanie podłogowe zaprojektowane w standardzie zapewni odpowiednią komfort cieplny już przy samej podłodze. Korzystając z pięknej pogody można rozsunąć szerokie drzwi balkonowe dodatkowo „włączając” powierzchnię tarasu do przestrzeni wypoczynkowej. Projekt ten powstał jako odpowiedź na oczekiwania inwestorów ceniących rozwiązania nowoczesne i efektowne. Jak również realne do zrealizowania w rozsądnym budżecie. Dla zainteresowanych tym, aby ich piękne maszyny miały dach nad głową posiadamy też wersje powiększone o garaż – HANA 2, HANA 4, HANA 5.

Szczegóły oferty

Cena zakupu: 4 600 zł brutto

DANE POWIERZCHNIOWE:

  • Powierzchnia użytkowa: 109,48 m2 + antresola (49,39 m2)
  • Powierzchnia zabudowy: 152,07 m2
  • Kąt nachylenia dachu: 35  stopni
  • Wysokość w kalenicy 7,42m

SPECYFIKACJA MATERIAŁOWA

  • technologia murowana,
  • pustaki ceramiczne,
  • ławy fundamentowe,
  • strop żelbetowy monolityczny,
  • ogrzewanie pompa ciepła (opcja: gaz, aby uniknąć komina wrzut spalin przez ścianę),
  • wentylacja mechaniczna z odzyskiem ciepła (rekuperacja),
  • dach kryty blachą na rąbek,
  • stolarka okienna 3-szybowa.

Skontaktuj się

    Dane kontaktowe

    Lokalizacja działki

    Napisz wiadomość

    Skontaktuj się

      Dane kontaktowe

      Lokalizacja działki

      Napisz wiadomość

      Inspiracje