Minimum zapotrzebowania Midwest Retreat

O realizacji

Zaprojektowany przez BNIM, wyróżnioną firmę architektoniczną AIA 2011, Midwest Retreat znajduje się w stanie Iowa. Midwest Retreat zaprojektowano jako miejsce zarówno spotkań towarzyskich, jak i biznesowych. Z powodu tego podwójnego zastosowania programowe relacje i wymagania odbiegają w subtelny, ale ważny sposób od typowego miejsca zamieszkania.

Midwest Retreat zlokalizowano na pasterskim terenie o powierzchni aż 283 hektarów na wzgórzach stanu Iowa. Pierwotnie zakupiona nieruchomość zawierała mieszankę prerii, lasów i dawnych pól uprawnych. Z pomocą Departamentu Zasobów Naturalnych stanu Iowa, właściciel przywrócił wiele ugorowanych gruntów rolnych i nierodzimych lasów z powrotem do ich rodzimej ekologii prerii.

Midwest Retreat ustroniem w sercu Iowa

Do budynku można dojechać od południa dzięki żwirowemu podjazdowi, który przecina preriowe i leśne siedlisko. Ustronie znajduje się na istniejącej polanie i jest otoczone odrestaurowaną prerią, która może dorastać do obwodu budynku. Dzięki usytuowaniu na tej polanie, a także swojej formie i materiałowi, budynek odzwierciedla agrarne typologie regionu. nowoczesną STODOŁĘ wydłużono w kierunku wschodnio-zachodnim, aby zmaksymalizować kontrolę światła dziennego i podkreślić widoki na staw od wschodu i samotne drzewo od zachodu.

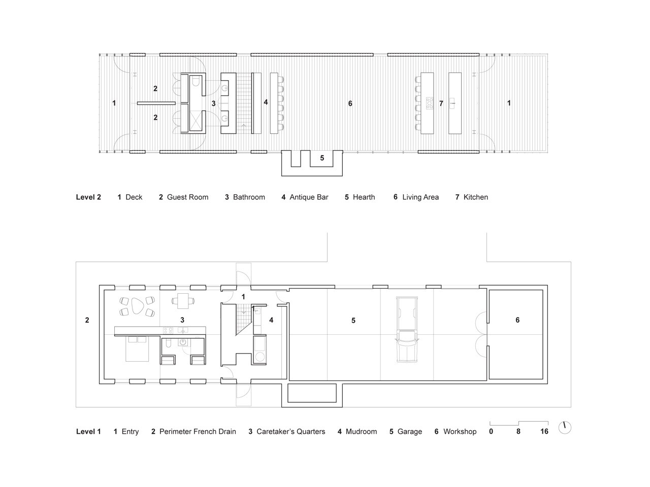
Część funkcjonalna Midwest Retreat wyraźnie oddziela przestrzenie socjalne w drewnianej bryle o ciągłych szczytach powyżej od przestrzeni podporowych w betonowej „skrzynce” poniżej. Oprócz wyraźnego oddzielenia pomieszczeń pomocniczych i socjalnych, zlokalizowanie głównych miejsc spotkań na drugim piętrze zapewnia dostęp do widoków i większe możliwości naturalnej wentylacji. Funkcjonalnym sercem drugiego piętra jest duża, elastyczna otwarta przestrzeń ograniczona trzema stałymi elementami funkcjonalnymi: niską kuchnią, dużym paleniskiem i zabytkowym barem nabytym wcześniej przez klienta. Te kluczowe elementy definiują przestrzeń i wspierają zakres działań społecznych. Pojedyncza łazienka na górnym poziomie jest skonfigurowana w taki sposób, aby umożliwić wysoki stopień otwartości na mniej prywatne funkcje, takie jak mycie rąk, jednocześnie pozwalając na zamknięcie bardziej prywatnych elementów. Każdy z dwóch pokoi gościnnych od strony zachodniej zaprojektowano tak, aby mógł służyć jako część sypialna, przestrzeń biurowa lub pokój do ćwiczeń.

Zminimalizowany wpływ na środowisko

Oprócz właściwej orientacji, projekt Midwest Retreat wykorzystuje szereg innych strategii, aby zmniejszyć swój wpływ na środowisko. Jest ogrzewany i chłodzony przez system geotermalny, a system mechaniczny podzielono na strefy, aby umożliwić niezależne kondycjonowanie jednostki dozorcy. Izolacja z pianki natryskowej o zamkniętych komórkach w przegrodach budowlanych zmniejsza infiltrację i potrzebę stosowania dodatkowej paroizolacji. Działające okna i wentylatory sufitowe wspomagają naturalną wentylację. Na obu końcach zastosowano ośmiostopowe zwisy, aby zacienić szkło niskoemisyjne. Odzyskane drewno jest używane do okładzin wewnętrznych i zewnętrznych. Z kolei zawarte w nim naturalne środki konserwujące zapewniają, że zewnętrzne produkty wykończeniowe nie są potrzebne. Na tym samym drewnie na ścianach wewnętrznych i suficie nie zastosowano żadnego wykończenia.

Zminimalizowana potrzeba konserwacji

Ponieważ Midwest Retreat będzie używane sporadycznie, ważne są rozwiązania wymagające niewielkiej konserwacji. Zamiast rynien, woda spływa bezpośrednio z dachu do francuskiego odpływu, który biegnie w sposób ciągły wokół obwodu budynku. Na wschodnim i zachodnim krańcu woda przepływa między deskami tarasu, przez szczeliny drenażowe i po pochylonych betonowych ścianach. Mechaniczne wloty i wyloty są chronione przed warunkami atmosferycznymi, ukryte na szczycie betonowej ściany za przedłużeniem drewnianej osłony przeciwdeszczowej. Betonowa podstawa, okładziny z naturalnie zakonserwowanego drewna, okna z wytłaczanego aluminium i metalowy dach składają się na tę długowieczną i niewymagającą konserwacji strategię.

Budynek zorganizowano w taki sposób, aby osiągnąć maksymalną wydajność i minimalną ilość odpadów. Szczyt to ciągły układ kratownic nożycowych od wschodu do zachodu. Ściany są obramowane ośmiostopowymi kołkami, które nie wymagały cięcia. Standardowy szalunek betonowy wielokrotnego użytku tworzy dwustopowy moduł budynku. Drewniana okładzina jest skoordynowana z dwunożnym modułem wewnątrz i na zewnątrz; dzięki zastosowaniu strategii odwrotnej deski i łat okładzina przylega do modułu 8”, umożliwiając jednocześnie użycie standardowych desek 7 ¼. Przestrzeń jest zamknięta i zdefiniowana tak minimalnie, jak to możliwe, przy jednoczesnym zapewnieniu niezbędnej programowej separacji.

Lokalizacja: Iowa, Stany Zjednoczone
Tekst: nowoczesna STODOŁA