O inspiracji
House R to dom na weekend, znajdujący się w idyllicznym zakątku Alp w pobliżu malowniczego jeziora Bohinj.
To miejsce pod ochroną, a dom stoi w miejscu, w którym wcześniej znajdował się stary budynek i zgodnie z obowiązującym tu prawem, musi mieć dokładnie ten sam zarys, co jego poprzednik.
Rejon w okolicy jeziora Bohinij jest pełen wakacyjnych domków, które pamiętają lata 70. ubiegłego wieku, i zwykle są one dosłowną „kopią” architektury typowej dla słoweńskich Alp – mają ostry, spadzisty dach i ciemne drewno z zewnątrz. Często są zamieszkiwane tylko tymczasowo w sezonie letnim.
Architekci próbowali poradzić sobie z tymczasowym zamieszkaniem nowego budynku, łącząc tradycyjny model domu z domem letniskowym. Nowy budynek wygląda jak duże, drewniane pudełko, kiedy stoi pusty. Bardziej przypomina wtedy swym wyglądem STODOŁĘ, pozbawioną okien i drzwi. Elewacja to modrzewiowe panele, pomalowane w kolorze srebrno-szarym, które przesuwają się, by odsłonić dom, kiedy w sezonie letnim przyjeżdżają do niego mieszkańcy.Na pierwszy rzut oka dom wydaje być tradycyjny, choć o nowoczesnym charakterze. Wystarczy jednak przyjrzeć się bliżej, żeby zobaczyć, że budynek można „animować”. Wszystkie okna i drzwi (łącznie z wejściem), jak również duży otwarty taras na parterze, można „odsłonić” lub „ukryć”, nadając mu inny charakter.
Konstrukcja domu jest betonowa, ale elewacja zewnętrzna jest drewniana i składa się m.in. z dużych, przesuwnych paneli, które zasłaniają wszelkie okna i drzwi. Drewno modrzewiowe, które zastosowano na ścianach zewnętrznych jest pomalowane w kolorze srebrno-szarym, co nadaje budynkowi wygląd, jakby „stał tam od zawsze”. Naturalny, ciepły kolor modrzewia zachowują okna, które służą jako „ramy” dla krajobrazu dla przebywających w środku.
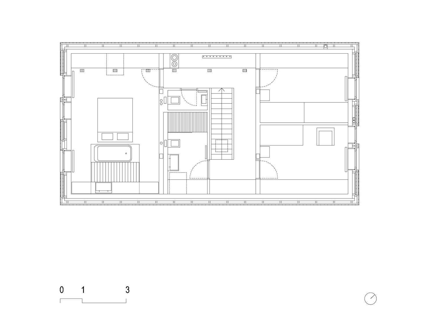
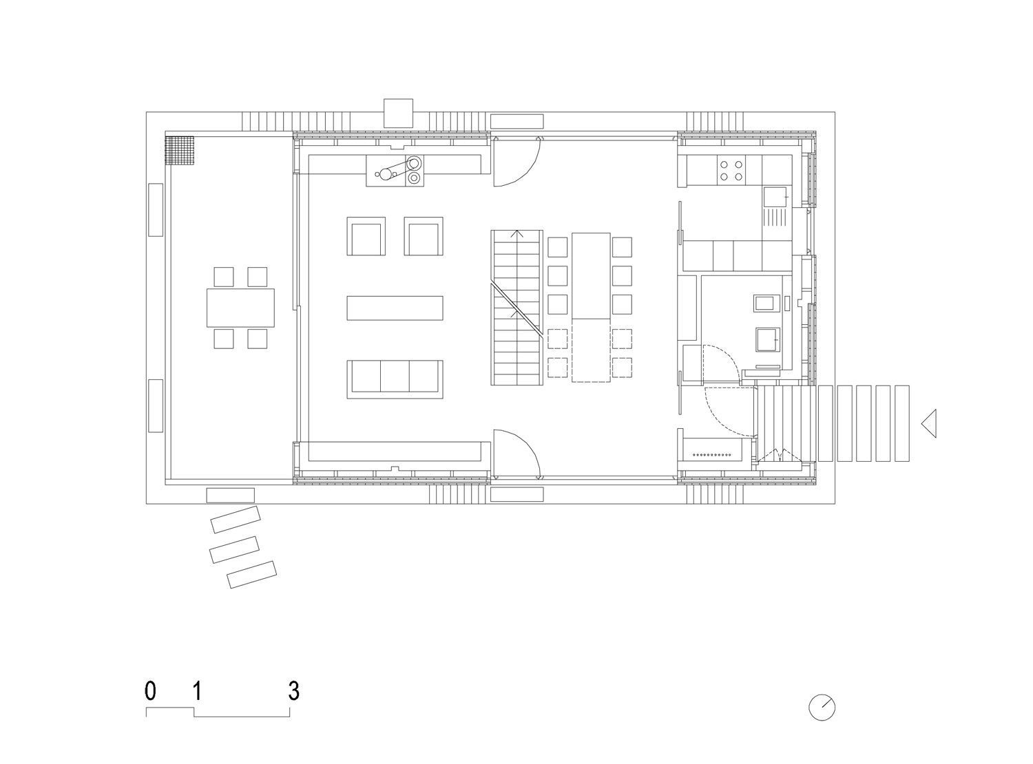
Pod tym drewnianym „okryciem” kryje się współczesne, ascetyczne wnętrze o otwartym planie. Przestrzeń jadalni otwiera się na otaczający krajobraz przez duży zadaszony taras. Na górę prowadzą strome schody, po których dochodzi się na pierwsze piętro zawierające sypialnie i część salonową, a na strychu znalazło się miejsce na pomieszczenia użytkowe oraz saunę.
Okna w sypialniach, ułożone w sposób pozornie chaotyczny, stają się „ramami”, wychwytując różne, najpiękniejsze widoki z okolicy. Dzięki temu mieszkańcy mogą oglądać ogród lub ścieżkę prowadzącą do domu, jak również niebo – leżąc w swoich łóżkach. W ten sposób dom komunikuje się z otaczającą go przyrodą i świetnie łączy tradycyjne budownictwo tego regionu ze współczesnymi potrzebami i zwyczajami.
Lokalizacja: Słowenia
Tekst: nowoczesna STODOŁA