Destylarnia Callington Mill

Cumulus Studio Adam Gibson
Kategorie: Domy modułowe
Partnerzy

O inspiracji

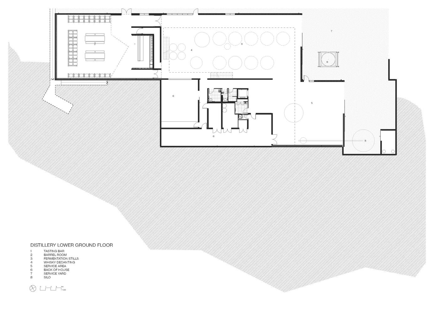
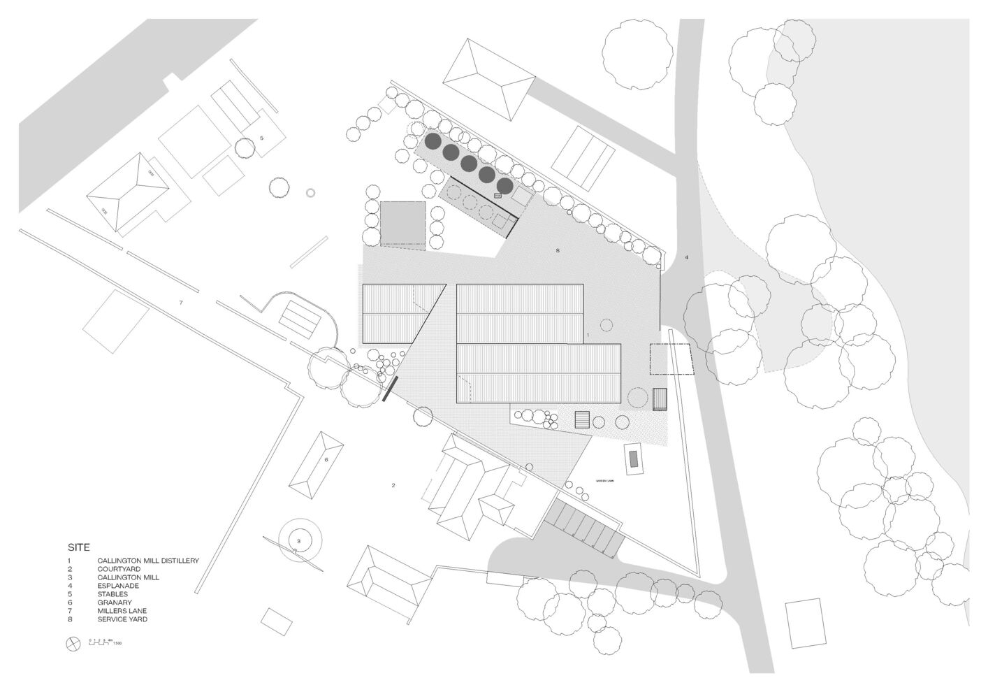
Destylarnia Callington Mill, położona w cieniu kultowego wiatraka w Oatlands, równoważy przemysł i turystykę, tradycyjne materiały i współczesny design. Projekt uwzględnia potrzebę sprostania wymaganiom produkcji przemysłowej działającej destylarni whisky.

Na wybór materiału duży wpływ miały lokalne przepisy dotyczące dziedzictwa kulturowego dotyczące okładzin murowanych. Dominująca cegła ma miękką i kredową patynę, która nawiązuje do piaskowca otaczających budynków, podczas gdy proste dwuspadowe formy nawiązują wysokością i estetyką do dachów domów miasta. Wnętrza i materiały w nich użyte nawiązującą do bogatych tonów whisky. Dlatego właśnie znajduje się tam stolarka z dębu tasmańskiego, mosiężne okucie, minimalne oświetlenie i marmur o złotym odcieniu.

Destylarnia Callington Mill to wyrafinowany, przemyślany i nowocześnie działający budynek w jednej z najstarszych osad w Australii, zapewniający wyjątkowe wrażenia turystyczne i zanurzający gości w historii lokalnej whisky.

Lokalizacja: Outlands, Australia
Tekst: nowoczesna STODOŁA