Casa FUS

WDE SIGN
Kategorie: Domy modułowe
Partnerzy

O inspiracji

Podejściem architekta przy tworzeniu tego projektu było myślenie o prostych, zwięzłych i funkcjonalnych bryłach. Tak powstała Casa FUS z elewacjami i dachem wykonanymi z ceglanego gontu.

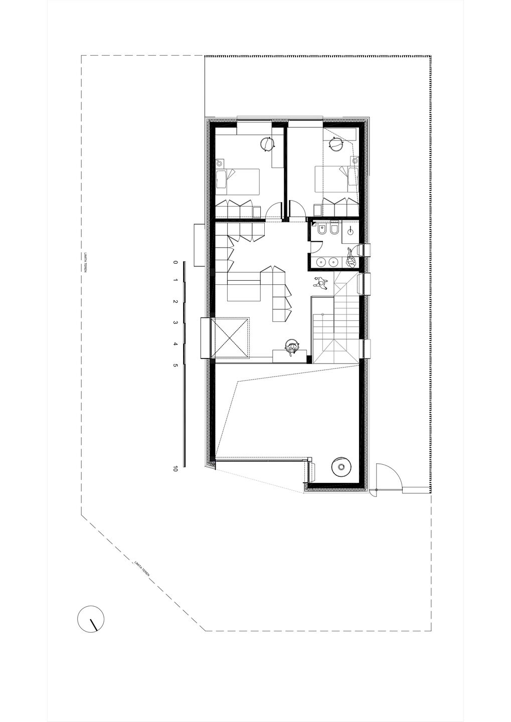
Starano się zachować funkcjonalność pod suchą i prostą bryłą domu typu STODOŁA. Architektowi zależało na domu prostym, pozbawionym sztuczności. W ten sposób stworzono surową bryłę, ale  efektywną w kontekście wymiarów działki. Od strony architektonicznej wyzwaniem była także lokalizacja. Położony na skrzyżowaniu dwóch ulic, dom jest wyeksponowany. Musiano dokładnie przemyśleć, w jaki sposób zachować prywatność.

Dom posiada wyraźnie rozgraniczonąstrefę dzienną i nocną. Forma parteru zapewnia przejrzystość jednej fasady na drugą i wyznacza oddzielenie głównych funkcji mieszkalnych od reszty. Te ostatnie są umieszczone w tylnej/bocznej stronie elewacji. Pionowe połączenie domu charakteryzuje się zarówno żywą i ciepłą materialnością schodów i balustrad. Ściany i podłogi pozostawiają miejsce na wyobraźnię i kolor, który z powodzeniem wkracza później w wystrój i dekorację domu. Na górze klatka schodowa otwiera się na cichszą część dzienną, w której mieści się gabinet i biblioteka.

Lokalizacja: Rumunia
Tekst: nowoczesna STODOŁA

Architekt

WDE SIGN