Australis House

Sealand Architects David Chatfield Emma Bourne
Kategorie: Domy drewniane
Partnerzy

O inspiracji

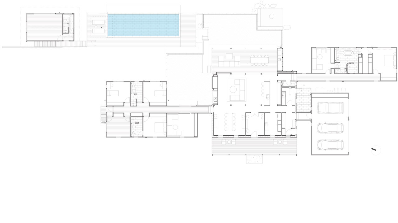
Marzeniem klienta było stworzenie domu, który będzie pielęgnował relacje z rodziną i przyjaciółmi oraz zapewniał intymne połączenie z otaczającym krajobrazem. Chcieli domu, który ułatwiłby wychowanie młodej rodziny, ale jednocześnie zapewniał elastyczność, aby dostosować się do zmieniających się wymagań w miarę dorastania dzieci.

W domu znajdują się duże, centralne obszary, w których rodzina może się spotykać, gotować, jeść, śmiać się i odpoczywać. Na obu końcach domu znajdują się mniejsze, intymne sypialnie, w których można spędzić bardziej osobisty, spokojny czas. Dom zapewnia silne połączenie z otaczającym krajobrazem. Pokoje w domu mają duże, przesuwane, szklane drzwi i okna, które otwierają się na ogrody i krajobraz za nimi. Dom wykorzystuje naturalne światło i wentylację, dzięki czemu mieszkańcy mogą poczuć dzień i pory roku.

Pod koniec 1800 roku wzdłuż rzeki Noosa znajdowały się piękne budynki z drewnianymi dachami o dwuspadowym dachu. Główną inspiracją dla domu Australis były właśnie te wczesne budynki z ich eleganckimi formami dachów i drewnianą konstrukcją. Na zewnątrz zastosowano bardziej tradycyjne materiały, takie jak lokalne drewno i kamień. Materiały te zapewniają piękny charakter, są stosunkowo łatwe w utrzymaniu i są odporne na pożary buszu. Wewnętrznie korzystano głównie z lokalnego twardego drewna, kamienia, betonu i tynku.

Lokalizacja: Noosa, Australia
Tekst: nowoczesna STODOŁA