Kuku-Ranna

Eek & Mutso Toomas Tuul
Wypoczni w STODOLE

O inspiracji

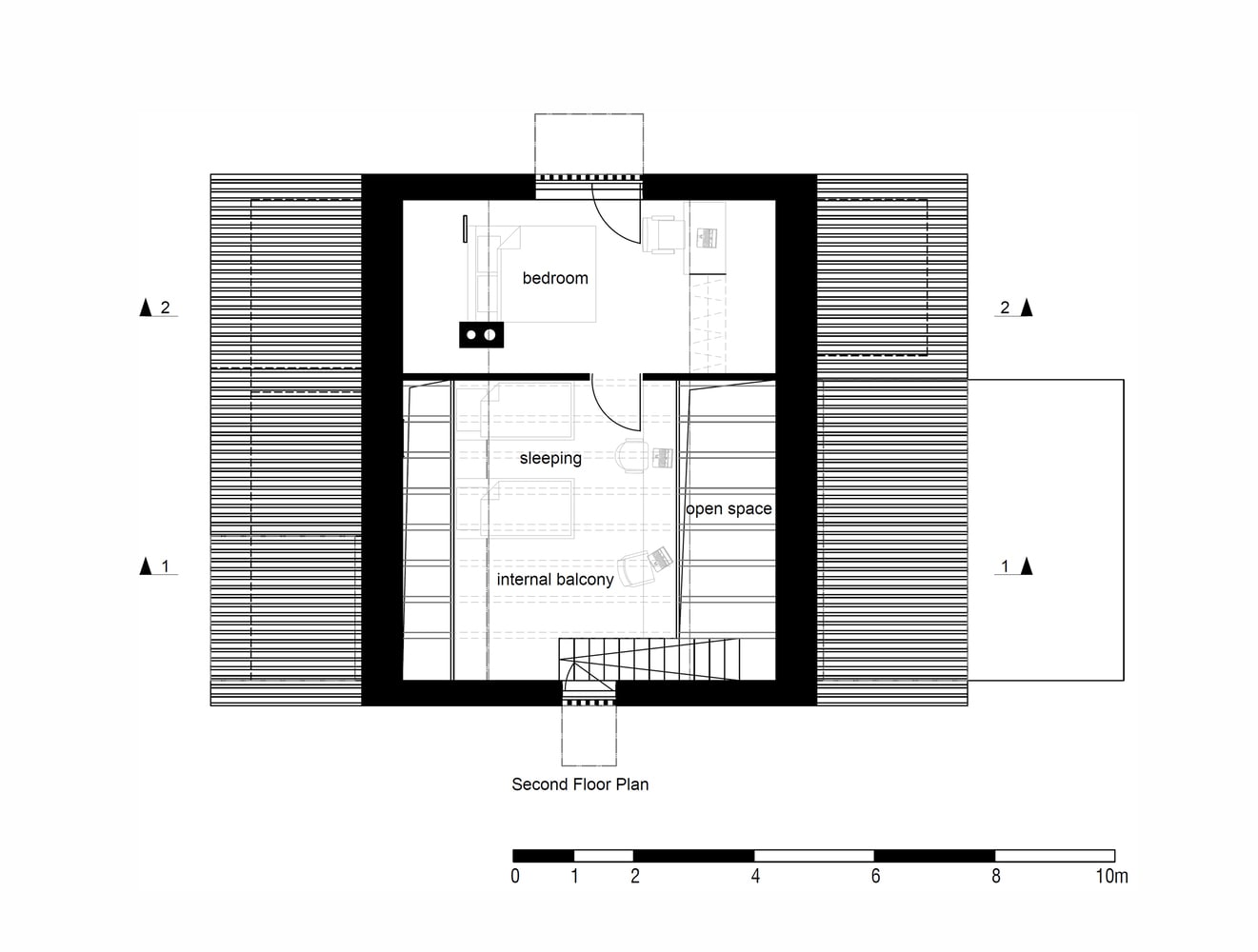
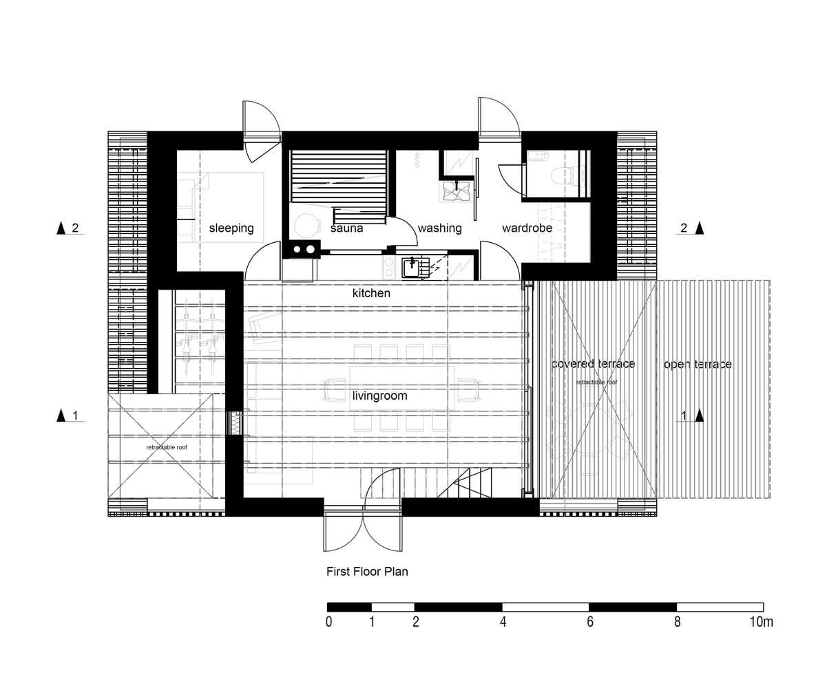
Domek letniskowy w Vääna-Jõesuu, około 35 km od Tallina, jest jak archetyp domu tipi. Minimalistyczna forma przypominająca namiot, która była często stosowana w architekturze wiejskiej w latach 70., została uzupełniona elementami kinetycznymi, zmieniając lakoniczną bryłę we współczesny jasny i przewiewny domek letniskowy. Gdy w domku nikt nie przebywa, wtedy jest pozamykany ze wszystkich stron i staje się niezauważalny.

Otwarty dach zapewnia schronienie przed deszczem i światłem słonecznym. Zamknięty tworzy z kolei praktyczną przestrzeń do przechowywania mebli ogrodowych, jednocześnie osłaniając wnętrze przed warunkami atmosferycznymi. Tylna żaluzja domu odsłania mały warsztat, który podobnie zamienia się w przestronną przestrzeń zewnętrzną z zadaszeniem. Odrestaurowane owalne okno między warsztatem a salonem pochodzi z secesyjnej willi w Tallinie zaprojektowanej przez fińskiego architekta Armasa Lindgrena.

Dom stoi na płycie betonowej, a cała konstrukcja jest drewniana. Również wykończenie zewnętrzne i wewnętrzne to drewno, natomiast konstrukcja okiennic to stal zapewniająca sztywność ruchomych elementów i stabilność domu.

Lokalizacja: Vääna-Jõesuu, Estonia
Tekst: nowoczesna STODOŁA

Architekt

Fotograf

Toomas Tuul

Wypocznij w stodole